忍者ブログ

演劇ユニット 昼ノ月

3人でお芝居します。
2026
03,28

«[PR]»

×

[PR]上記の広告は3ヶ月以上新規記事投稿のないブログに表示されています。新しい記事を書く事で広告が消えます。

2008
11,12


広島での公演が無事に終了いたしました、押谷です。

温かい仲間に支えられて、たくさんの方々にご来場いただきまして
素敵な時間を共有できたことを本当に感謝しています。
感謝、感謝、ありがとうございました。

広島はチンチン電車が街のど真ん中を走り、いくつもの川が流れ、ドラマで見たことがあるようなかっこいい橋が架かるとてつもなくかっこよい街でした。
私たちが公演を行った山小屋シアターは、そんなかっこよい街のど真ん中だけど一目見ただけではわからない隠れ家的な場所にあります。
素敵な場所というのはそういうものなのかも知れません。

今年最後の公演、力が入らないわけがありません。
私たちだけではないのです。広島での公演をお手伝いくださった広島演劇協会のみなさま、お手伝いくださったスタッフのみなさま、みんな熱いあつい方ばかりで。

休憩時間にはたっぷりと広島を堪能。
広島焼きを食べに行く人、安い服があると聞いて掘り出し物を探しに行く人、それぞれの広島を楽しみました。
いやいや私たちは公演をしに来たのであって、決して観光だけしていたわけではありません。はい。
しかし、夜は天然温泉。誰かさんは露天風呂が最高だと、ほっかほかの体で熱弁してました。
素敵な時間はあっという間で。
6日間の広島での日々を思いながら京都に帰るバスは、興奮冷めやらぬ私たちの熱気で前が見えないほどに窓ガラスが曇っていました。

広島で出会った様々な人々に感謝しながら、各地をともにまわった舞台の道具を荷降ろして、ふとみあげると夕日が。
みなさん、お疲れ様でした。

広島でお手伝いくださった皆様、見に来てくださった皆様、本当に本当にありがとうございました。

少し休んで、来年私たちは愛知に行きます。
愛知ではどんな出会いが待っているのでしょう、今から楽しみです。






PR
2008
11,04
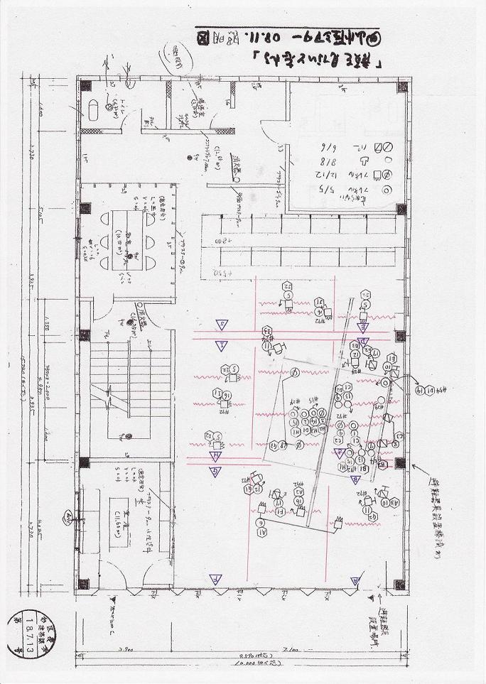
照明

今、トラックは我々より一足先に広島へむけて出発していった。さあ。明日から広島で仕込だ。
ちょっと機密情報を。
これは照明のつり込み図だ。
鈴江作成の傑作図面なのだ。
見る人が見ればこれでどんなプランなのか、わかってしまう。
いけない。こんなことでいいのか。いやこれはどういうことだ。
おお。この凸レンズの連続した並び具合はいったいどういうことだ。こんな大胆なプランがあってよいのか??

……どうか皆さんお楽しみに。この図面が実際どんな絵を構築するのか、今から私たちもワクワクしています。
2008
11,03
二口です

10月公演をはさんでまたまた二人芝居です
今度は広島は山小屋シアター
初めての会場はいつもドキドキします
緊張します
身体が空間に馴染むのに時間が要ります
声が跳ね返ってくるのが心地好くなるのも同じです
山小屋はその名の通りそびえ立つ頂のそこにあります
でもその頂とは目に見える山ではなく
別のもののそれです
山を登りに行こう
いろんなルートがある入り口がある
そこでは台詞がはしゃぐのです
おどるのです
ドキドキがわくわくに
かわるのです
ご一緒にいかがですか?

では、




2008
11,03

あっという間に11月ですね。押谷です。

あんなに暑かった夏はどこへ。
日陰を探してさまよったあの夏はどこへ。
私たちが熱く熱く過ごした夏はどこへ。

気づけば、肩をすくめて歩く、そんな季節になっておりました。

でもまだまだ私たちの季節は続いております。
もう終盤戦です。
ついに私たちは広島へたどり着こうとしております。
そう、待ちに待った広島。
今週末は広島が熱く燃えます。
小さな芝居小屋が、熱く燃える3日間なのです。

まだこの奇跡のような体験をしていない方はぜひ広島へ。
私たちはみなさんをお待ちしております。
夜も寝ないで待ってます。
いまかいまかと待ってます。

広島の山小屋シアターです。
横川駅から徒歩3分です。
近いでしょ。
ほら、行きたくなってきたでしょ。

はい、待ってます。

2008
10,31
実行委員

来週末がいよいよ!
広島での公演!

私たちはもちろん稽古場でまた七転八倒の日々がつづいている。この前まで12人の芝居の稽古をしていた同じ建物で、2人芝居はとてもひろい。稽古場がひろい。人の間をすり抜けないと奥までいけなかった演技空間が、今はのびのびストレッチの空間になる。しかししかし。
その分一人の役者にのしかかるプレッシャーは重い。重くて、その重さをはねかえす軽やかさを身にまといたい、と役者はまたまたそのなぞめいたコツを求めてもがくのだ。

広島でももがいてくれている仲間がいる。チケットを売るのだ、という決意表明をしてくれている仲間がいる。
自分が出演するわけでもないチケットをどうやったら売れるのだろう?……きっと彼らはもがいてくれている。苦労は相当なものに違いない。そして、そんな苦労があってこそ私たち役者の、演出の、スタッフの営みは実を結べるのだ。
その自覚は僕らをふるいたたせる。

ほら。

みてほしいこのまちまちなゲンコツを。中にはチョキを出して勝手に負けてるおじさんもいる。ああこのまちまちな人たちがひとつになってくれるという奇跡!まちまちなアッパーカットに打たれて、僕らは稽古場で感動のあまり三歩歩めず……いやいや。ないている場合ではない。僕らはやるのだ。実現するのだ。奇跡のような時間を。

山小屋シアター。横川駅から下りてすぐのちいさな隠れ家みたいな基地。どうかどしどし来てください。別に京都から出かけていっちゃいかんという法律はないのです。東京からいっちゃいかん、という決まりはないのです。北海道から金沢から、全国各地から「見逃してしまいそうだ……」と焦った人たちが押し寄せるでしょう。
これを過ぎると半年、この世界のどこでもこの二人芝居はやりません。

急げ!山小屋へ!

[5] [6] [7] [8] [9] [10] [11] [12] [13] [14] [15]


« 前のページ:: 次のページ »
カレンダー
02 2026/03 04
S M T W T F S
1 2 3 4 5 6 7
8 9 10 11 12 13 14
15 16 17 18 19 20 21
22 23 24 25 26 27 28
29 30 31
バーコード
ブログ内検索

Powered by Ninja.blog * TemplateDesign by TMP
忍者ブログ[PR]